

服务时间:2020年11月20日
项目地址:双流区航港路与洪江路交汇处
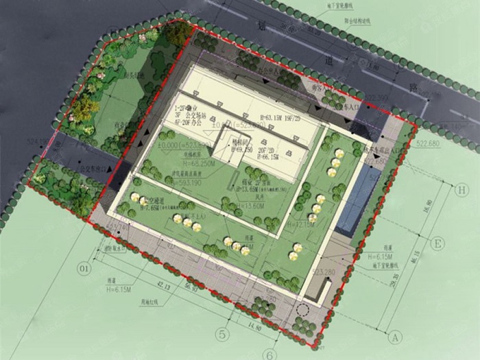
航港路首末站是空港发展集团开发打造的以公交首末站为节点,配合商业开发的综合体项目。
航港路首末站位于成都市双流区航港路与洪江路交汇处,项目靠近优品道广场、万达广场两大购物中心;周边有川网国际花园、棠湖锦绣城、富豪新岸、香榭美邻、远大林语南庭等众多中高端项目;棠湖中心实验学校等优质教育资源,项目地理位置优越,区域成熟度高。
地块占地9.41亩、容积率3.0、建筑密度50%、绿化率20%、限高45米,项目打造为美好生活的社区服务中心,主要规划产品为公交首末站、临街商铺、酒店公寓、写字楼。


